• Projects
  • About

TILLMAN DESIGN

Architectural & Graphic Design

  • Projects
  • About

The Role of Affordable Housing
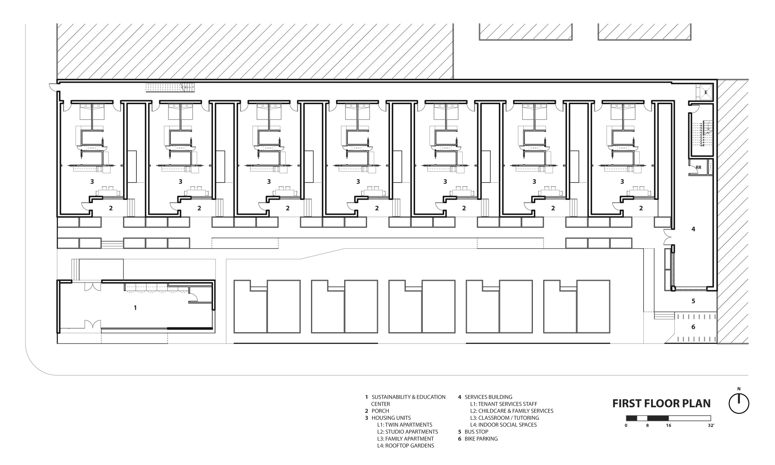
Housing should reflect the needs and desires of the residents, meeting them where they are while also helping to guide them where they want to be. This design responds by creating spaces that feel both intimate and expansive, protected yet exposed. It’s in these moments that residents can thrive in independence with the strong support of their surrounding community. The housing forms highlight a beautiful, graceful imbalance, a broken piece of a hard shell that lets light, color and growth in. The gap in the lower level becomes key for the occupants, as it provides ease of social connections for residents that may need it most, such as young parents or elderly residents.

Replicable Design
A core focus of this proposal was to create a design that used a variety of modular elements to not only reduce costs, but also allow the design to be easily scaled to a wide variety of sites. Industrial finishes are used throughout for durability and affordability, while massing and vivid colors bring the project to life. Different types of garden planters provide opportunities for residents of all ages and abilities to reap the physiological and therapeutic benefits of gardening, while also providing opportunities for personalizing their space and gaining food resilience in what may be financially uncertain circumstances.

02_BTillman-NEW-LEAF-Services-Building.jpg

Comprehensive Support

The structure at the east end contains a wide range of tenant services configured to help reduce a variety of financial and emotional pressures. A dedicated support staff at the lower floor increases security, while also being on hand to respond to any tenant needs. Childcare services and tutoring spaces support education while providing a safe social space after school, reducing the emotional and fiscal pressure of finding care and allowing parents to put more energy towards pursuing their own opportunities. Finally, a dedicated social space on the top floor provides space for large gatherings and impromptu activities, especially during the cold months.

Rooftop Gardens
A series of integrated gardens act as a multi­-faceted resource, reducing grocery costs and improving dietary independence. They also allow for the therapeutic benefits of hands­-on work, nurturing living things, physical activity and a collaborative experience, with the vertical gardens, medium planters and large agricultural plots providing diverse social opportunities.

Comprehensive Sustainability
The design maintains affordability and low operating costs in many key ways. The buildings employ simple geometric forms, modular systems and adherence to a grid to maximize structural efficiency and minimize material waste. Primarily using economical materials with long lifespans and little need for maintenance reduces construction and lifetime costs. The use of pier foundations minimize excavation and site work required, and raising the structures above the ground plane greatly reduces the risk of flood damage and pests. A series of passive sustainable systems, including rainwater collection, high thermal insulation, and a focus on natural lighting and ventilation, all help to radically reduce the utility costs while also providing a healthier living environment for the residents.

Overall Plan
The emphasis on education extends to adults as well. A variety of sustainable life skills and job training classes are provided in the education center anchoring the site on the corner to both residents and the surrounding community, allowing them to learn together and form new bonds.

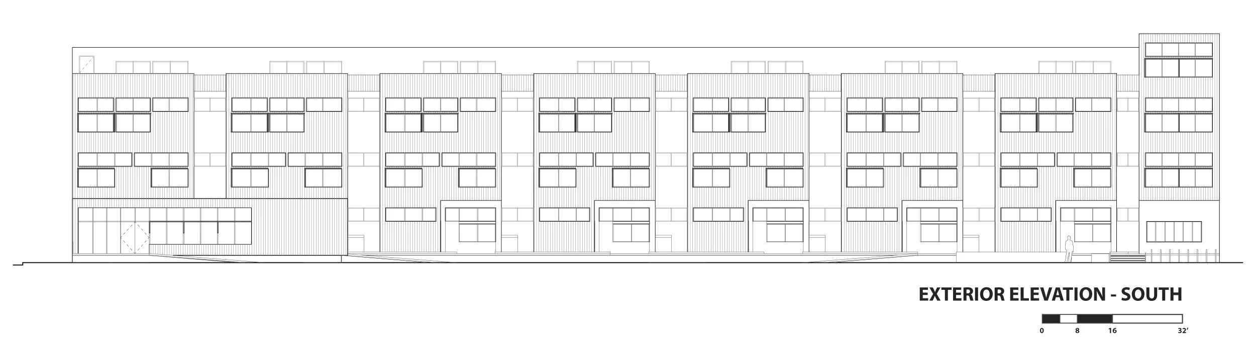
Modularity and Durability
The exterior facade is primarily comprised of galvanized corrugated metal siding, which is durable, long­-lasting and easy to maintain.

IMG_2800.jpg

Sharing the Design

I was honored to be awarded Third Place for this design in Home Matters' inaugural design challenge, and had the opportunity to travel to San Francisco to meet and speak with a group of immensely passionate and driven professionals.

IMG_2828.jpg

Awards

Pictured here with the First and Second Place winners, DeOld Andersen Architecture (Omaha, NE) and Jerry Kler Architects (Sausalito, CA).

Click here to learn more about the winning designs.