• Projects
  • About

TILLMAN DESIGN

Architectural & Graphic Design

  • Projects
  • About
This position allowed for a very high level of personal responsibility and design freedom, and required a strong sense of self-management, as each designer is generally handling 8-12 projects at a time under simultaneous timeframes. The necessary da…

This position allowed for a very high level of personal responsibility and design freedom, and required a strong sense of self-management, as each designer is generally handling 8-12 projects at a time under simultaneous timeframes. The necessary daily interaction and design collaboration with the clients, engineering consultants, construction teams and various vendors provided invaluable experience and insight into the construction process.

Many of the locations I designed for required thorough levels of detailing and customization, which was shown through highly detailed renderings. This location in Downtown Chicago was the third Starbucks in the country to serve wine in the evenings,…

Many of the locations I designed for required thorough levels of detailing and customization, which was shown through highly detailed renderings. This location in Downtown Chicago was the third Starbucks in the country to serve wine in the evenings, so the design included open shelving to display wine bottles and glasses, luxurious lighting and finishes, and more. A spotlight table in the back is highlighted through feature lighting, while a feature wall comprised of repurposed wine crates creates an elegant yet modern backdrop.

Many high profile stores are located in unique or historical buildings that require additional attention to detail in order to ensure that the new detailing integrates well with the existing features. One example of these practices is this model of …

Many high profile stores are located in unique or historical buildings that require additional attention to detail in order to ensure that the new detailing integrates well with the existing features. One example of these practices is this model of a historic 1800s-era building on the East Coast with original exterior and interior detailing that had to be carefully accommodated.

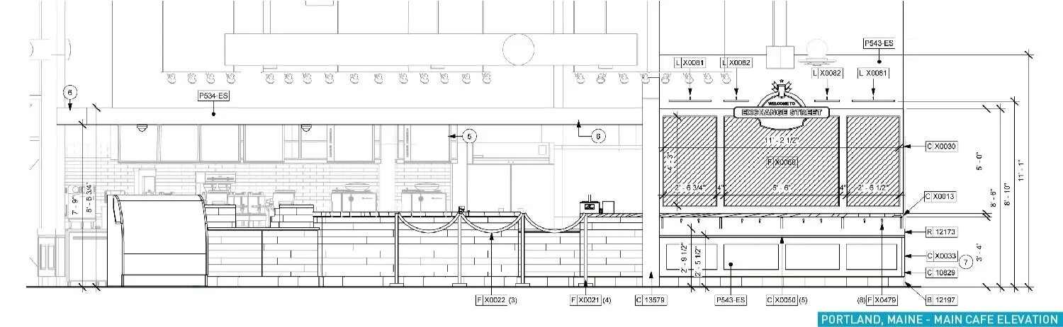
A portion of my projects included High Profile locations, which were typically located in major urban centers and experienced very high traffic. These projects allowed for much more conceptual and programmatic freedom than the standard stores, and t…

A portion of my projects included High Profile locations, which were typically located in major urban centers and experienced very high traffic. These projects allowed for much more conceptual and programmatic freedom than the standard stores, and therefore put a higher priority on space planning, material and lighting quality, and the overall customer experience. These stores would often also have unique concepts and themes that would define the store's design language, in order to better reflect the individual qualities of the surrounding community.

For a high profile store in Alexandria, VA, while conducting demographics studies, we found that the city contains a high proportion of educated residents and has been named the Best-Read City in America. The neighborhood also contains a large amoun…

For a high profile store in Alexandria, VA, while conducting demographics studies, we found that the city contains a high proportion of educated residents and has been named the Best-Read City in America. The neighborhood also contains a large amount of freelance workers. We focused the renovation concept in response to these facts, providing a built-in reading nook with shelving and integrated chalkboards, allowing customers to make recommendations to future visitors.

We also designed custom tables with integrated, adjustable lighting that would provide excellent spaces for freelance workers to meet and gather throughout the day. Based on feedback from the store employees, the new seating features have been very …

We also designed custom tables with integrated, adjustable lighting that would provide excellent spaces for freelance workers to meet and gather throughout the day. Based on feedback from the store employees, the new seating features have been very successful and popular among the customers, adding new options in addition to the company’s standard standard configurations. This store provided an excellent opportunity to design specifically for the community that will be using it every day, and is a great showcase for the benefits of Starbucks’ new design philosophy at work.

Many of the projects involved the design of high-concept solutions for displays and merchandising, many of which included integrated, specialized lighting solutions, in-depth material studies and iterative design visualizations.

Many of the projects involved the design of high-concept solutions for displays and merchandising, many of which included integrated, specialized lighting solutions, in-depth material studies and iterative design visualizations.